This complete system of the anchoring agent production was produced by SBM. With the facilities, the production line was able to realize centralized control, automatic production and troubleshooting during the production process. Besides, the project boasted easy operation, easy learning and use, etc.
Material: Sulphate-aluminium cement clinker, Portland cement, Metakaolin, Lime, Gypsum, etc
Input Size: <1mm
Moisture: <5%
Application: Slip-casting &filling material
| Raw material | Finished products requirements | Main properties | Setting time(min) | Compressive Strength(MPa) | Expansion Rate(%) | Anchoring force(KN) |
|---|---|---|---|---|---|---|
| Cement | 1250mesh D90% |
Satisty measure results MT219-2002 |
Initial set 3~4min |
0.5h >12~ 16 MPa |
0.5h≥ 0.1~0.18 | 0.5h ≥ 50~62 |
| Lime | ||||||
| Final set <7. 5min |
1h >18~ 24 MPa |
|||||
| Gypsun | ||||||
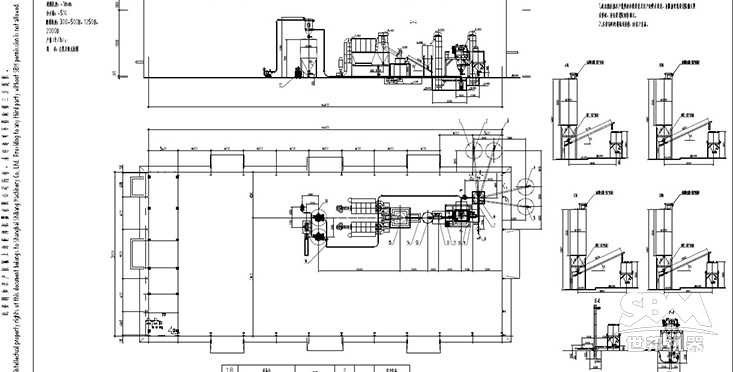
1、No Grinding: After going through the weighting system, raw materials of anchoring agent are weighted and proportioned; then the materials are fed to the zero-gravity stirring system to be stirred; finally, they are sent by the pneumatic conveying system to finished product tank to be stored. When the finished products are packed in bags, they are able to be transported for sale.
2、Material Grinding: The raw materials are fed to the weighting system by the feeding equipment to be weighted and proportioned, and then they are stirred and mixed in the zero-gravity stirring system. After that, the mixed materials enter the grinding system to be ground and classified. Finally, the materials are sent by the pneumatic conveying system to finished product tank to be stored and then to be packed in bags according to requirements. Although, it needs two kinds of processing technology, the two sets of production processes share the same set of production line. With the high-degree system integration, the production line takes quite little area and efficiently reduces equipment total investment.
Different from the standard design, this production line was improved according to customers’ requirements. The whole production line mainly contained the SCM1250 ultrafine mill (the main equipment), screw conveyer, powder packaging machine, pneumatic conveyor and so on, which met the requirements of the two sets of production processes of anchoring agent.
| No | Name | Model | Qty |
|---|---|---|---|
| 1 | Screw conveyor | LS315 | 2 |
| 2 | Scale | JLC | 1 |
| 3 | Screw conveyor | LSY250 | 4 |
| 4 | Hopper | 60m³ | 4 |
| 5 | finished product storehouse | 2 | |
| 6 | powder packing machine | bag package | 1 |
| 7 | pneumatic conveyor | QL | 1 |
| 8 | ultrafine mill | SCM1250 | 1 |
| 9 | spiral conveyor | LS219 | 1 |
| 10 | ore-surge bin | SCM1250-1 | 1 |
| 11 | bucket elevator | TH300 | 2 |
| 12 | material mixing system | WZ-6C | 1 |
| 13 | spiral conveyor | LS160 | 1 |
| No | Name | Model | Qty |
|---|---|---|---|
| 1 | Motor of the mill | Y355M2-6 | 1 |
| 2 | Classifier | Y225S-4 | 1 |
| 3 | Elevator | TH-300 | 1 |
| 4 | Motor of the elevator | Y100M-4 | 1 |
| 5 | Feeder | Carina Belt Conveyor | 1 |
| 6 | Bunker(Silo) | 10m³ | 1 |
| 7 | Discharging Spiral Conveyor | LS219 | 2 |
| 8 | Discharging Valve | ZJD-250 | 3 |
| 9 | Blower Motor | Y250M-2 | 1 |
| 10 | Hammer Crusher | PC600×800 | 1 |
| 11 | Hammer Crusher Motor | YB2-280S-6 | 1 |
| 12 | Dust Collector | LDMC250 | 1 |
| 13 | Air Compressor | LG6.2/8 | 1 |
| 14 | Ultrafine Mill | SCM1250 | 1 |
With the help of PLC and visualized operation, the degree of automation is quite high; Benefiting from the SBM technology, the scheme configuration is very reasonable.
Raw material feeding system: The separating stored cement, lime and gypsum and some other raw material of the anchoring agent are fed to the weighting system through the feeding equipment.
Weighting system: According to the set ratio, different raw materials are weighted.
Stirring system: After the weighting system, the materials are stirred and mixed in the zero-gravity mixer.
Grinding system: The mixed materials are fed into the ultrafine powder grinder through screw feeder to be ground and classified. As the key process, SCM1250 ultrafine mill grinds the powder until the powder is as fine as 1250 mesh.
Conveying, storage and packaging system: Finished products are collected by pulse dust collector and sent to tank by the pneumatic conveying system, packed by packaging system and transported.
SBM offered the professional project plan, including the working site programme, the best machine configuration and the budget and so on. What’s more important, SBM accepts customized requirements in the project design.
The whole production line realized centralized control by PLC, perfectly meeting the customer’s requirements, such as high efficiency, low pollution and low labor intensity.
SBM has one professional installation engineer team that can not only help customers finish installation work according to their requirements in short time, but also give a hand to train the operators.
After the installation and commissioning, SBM Customers Security Department will be in charge of the follow-up services, including spare parts supplying, maintenance and upgrade, and working site revisiting, etc.
The main equipment in the anchoring agent production is SCM1250 Ultrafine Mill ---- a high-efficiency but low-cost machine developed by connecting mill production experience and advantages of domestic and overseas mill manufacturing.
Newly designed grinding roller, grinding ring and grinding curve can promote the grinding efficiency. Under the condition of the same fineness and power, the capacity of this mill is 40% higher than that of jet grinding mill &stirred grinder and more than twice that of ball mill; while the consumption of the system is only 30% that of jet grinding mill.
Both single-head powder separator and multiple-head powder separator are optional. Because the speed of each rotor of the multiple-head powder separator is adjustable, the finished products can be collected directly, without further winnowing, and there is no inferior material. Among the final products, powders smaller than 2μm can reach 70%.
The use of pulse dust collector, silencer and sound-proof room can remove dust and reduce noise, which is totally in line with the national standards.
The grinding roller and ring are forged by special materials. As a result, the service life is 2-3 times longer than that of impact crusher and turbo crusher under the same condition. And they can be used for 2-5 years when it is used to grind calcium carbonate and calcite.
“After the Site visits and test, the engineers from SBM offer us a quite perfect design. Finally, we accept their design, using SCM1250 as the main equipment. Now the equipment is running well, and the high capacity, quality and stability are exactly what we need. SBM products do deserve the reputations they enjoy.”







As a new-type supporting approach of coal mine, rock bolting has been widely used in the large-scale mine production. The application rate of rock-bolting system is up to 85% and it already shows its strong vitality and advantages, becoming the main trend in the roadway supporting technology. As the main part of the rock bolting, the demand for anchoring agent is raising speedily, especially the Cement anchoring agent and the Resin anchoring agent.


Actually, Cement anchoring agent is a kind of fast-hardening cement. There are two ways to produce it, one is made by mixing high standard Portland cement with different proportions of accelerating agent, early strength agent and swelling agent; another is mixing all raw materials, calcining them, and grind it into fine powder finally. Quality indicators should obey MT210-2002.
Resin Anchoring Agent is a kind of tubular bonding plaster material, which is produced by special purpose unsaturated polyester resin of capsule resin and marble powder, accelerant and accessories
The anchoring agents are usually used as rock bolting materials in coal mines, coal road, tunnels, culvert mental mine, rubble slope embankment and other underground constructions.